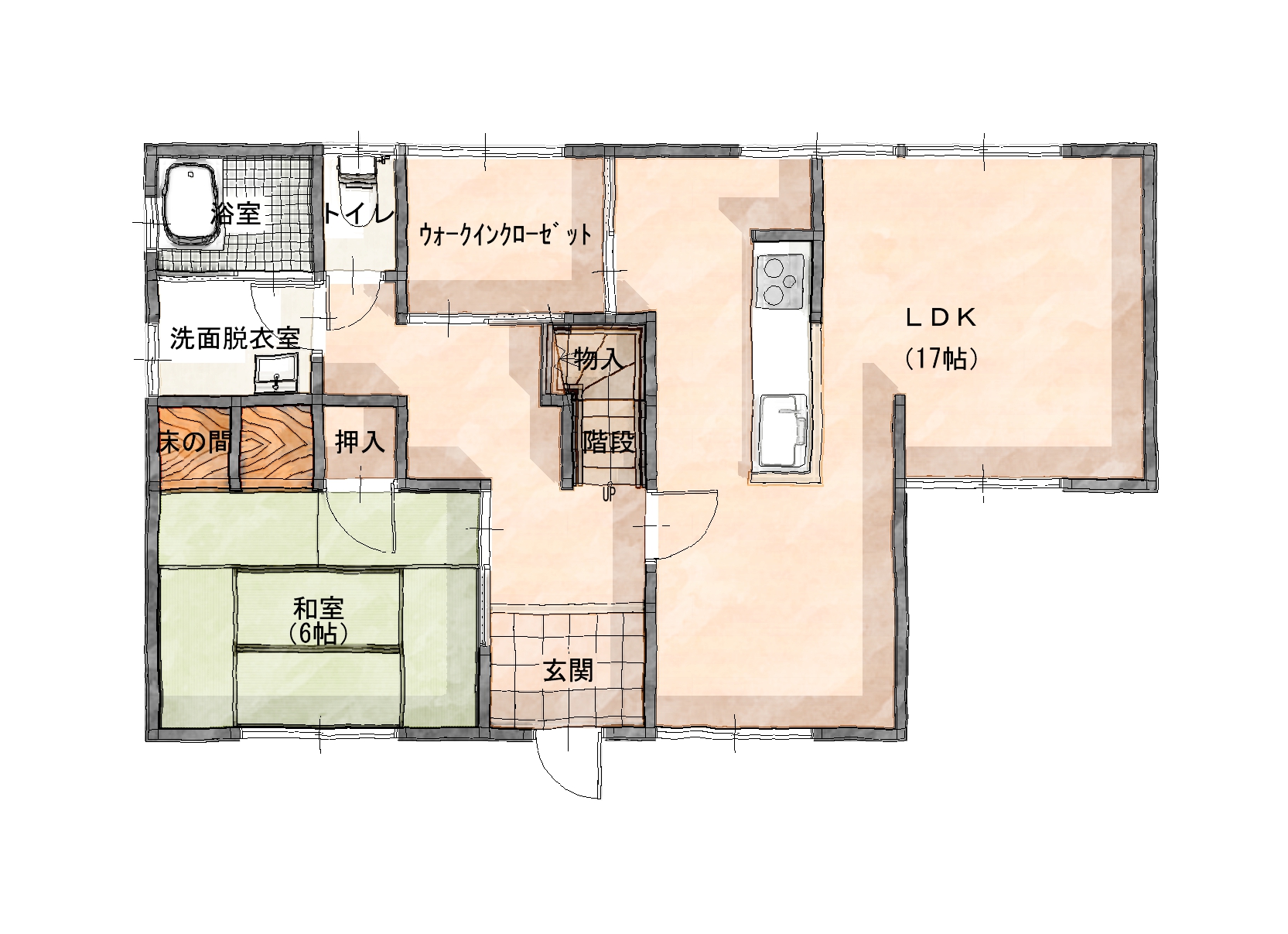
今回は、居間・ダイニングキッチン・和室の3部屋を一つの空間に繋げる間取り変更を行いました。あわせて床とクロス(壁紙)の貼り替えを行い、お部屋全体の印象がパッと明るく生まれ変わっています。
築年数:1984(昭和59)年築
間取 :4SLDK
【リフォーム箇所】
外観
(屋根、外壁塗装・樹木伐採、剪定・駐車場整備)
リビング
(間取変更・キッチン交換・クロス張替え(天井・壁)・床上張り)
廊下・玄関
(クロス張替え(天井・壁)・床上張り・玄関ドア交換)
和室
(畳表替え・クロス張り(天井・壁))
洗面所
(洗面化粧台交換・クロス張替え(天井・壁)・クッションフロア張替え)
トイレ
(クロス張替え(天井・壁)・床張替え)
2F洋室・納戸
(クロス張替え(天井・壁)・床:カーペット→フローリングへ)
その他
(スイッチ、コンセント交換)
間取図(1F)
リフォーム前

リフォーム後

外観


4台駐車可能な広々としたスペースを確保。さらに外壁のツートンカラー塗装により、機能性とデザイン性を兼ね備えた住まいに仕上げました。
LDK




独立していた居間・ダイニングキッチン・和室をつなげて開放感あふれるLDKへ。床・クロスの張替えも行い、光が通り抜ける開放的な空間へとアップデートしました。
キッチン


大切に使ってきたキッチンを最新設備へとアップグレード。収納力抜群の引き出しやお掃除が楽なレンジフードなど、家事の負担を軽減する機能を備えています。
和室


日焼けなどで傷んでいた畳を新調し、壁と天井にクロスを施しました。従来の和室の雰囲気をより軽やかで現代的な印象へとアップデートしています。
洗面脱衣室


経年による汚れが目立っていた床を貼り替え、清潔感あふれる空間へ。あわせて既存の棚を撤去して洗面台を新調したことで、ゆとりある動線と自由度の高い活用スペースを確保しました。
トイレ


トイレ本体はそのままに、壁と床の内装を一新。内装を変えることにより、これまでとは一味違う雰囲気を演出しています。
洋室


経年劣化による汚れが目立っていたカーペットを、フローリングへ。日々の掃除がスムーズになり、清潔さを保ちやすい空間へと生まれ変わりました。
毎日の暮らしをもっと快適にする「間取り変更リフォーム」。日々の生活でちょっとした不便を感じていませんか?
「壁を取り払いたいけれど、強度は大丈夫?」といった不安も、大分ベストリフォームにお任せください。専門の有資格者がしっかりとお家を診断し、構造上可能な範囲で最大限お客様の理想に近づけるよう、親身にお話を伺います。
まずはお気軽に無料相談・お見積もりから。理想の住まいづくりへの第一歩として、お気軽に大分ベストリフォームまでお問い合わせください!